Trans-forming Religious Spaces through the A(c/r)t of Drag
This is merely a blocking strategy for the proposal, with a Model meant to act less as a “to-scale hyper-detailed” mock-up of San Agustin Church, but rather as a vessel, a Cauldron that houses a concept and a feeling with each space having its own analog and special meaning.
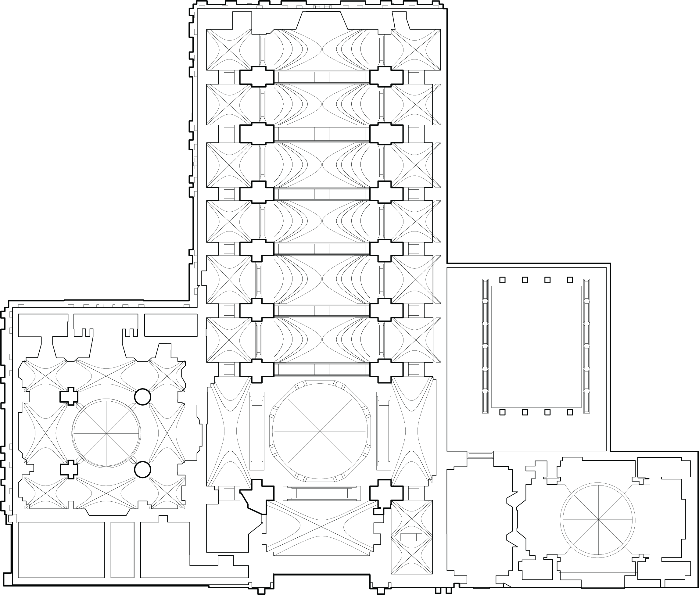
This is the first part of the Thesis Breakdown - The Site and Massing Model Proposition made for the repurposing of the currently empty Antiguo Templo de San Agustin (Old Temple of Saint Augustine) in Mexico City, Mexico.
Founded in 1581 by Augustinian Monks and taking several years to reach completion, the building has lived several lives, changing hands yet all the while keeping key educational components as its main draw. From its time as the “College of the Holy Name of Jesus Christ” while Mexico was still “New Spain” in which it served as an indoctrinating force for indigenous populations to its tenure as the National Library of Mexico (Biblioteca Nacional) until 1979. The church would eventually fall into the hands of UNAM (The National Autonomous University of Mexico) and a proposal in 2019 would set in motion its hollowing out to make way for a potential Indigenous Language Museum, but plans fell through and money ran dry due to the Covid-19 Pandemic.
This site, now sitting unused and having been remarked upon by INAH (The National Anthropological and Historic Organization of Mexico) as being extremely relevant, deserves a new life and by partnering with the Sisters of Perpetual Indulgence, an international queer drag syndicate founded in 1979 in San Francisco, CA as a response to hostility within the church, this could truly be a space of safety, healing, and acceptance, a cosmic balancing act to right the scales regarding much of the religious trauma caused directly and indirectly by the church and its doctrine.
For a Full Breakdown: Click Here
The point of the model was to show how the spaces could properly serve the Queer Community, with each room being turned into a multipurpose area capable of being read as an ever changing (or transforming) space of action built to fit the needs of the occupants, with the Sisters of Perpetual Indulgence as Staff to ensure the steady maintenance and flow of activities. I accomplished that reading with the usage of film print outs, overlays made of scenes in both red and cyan, able to be used in tandem with the lenses being handed out with the booklets. When the lenses weren’t available or if the model was in a space of low light, the LED strip lights came into play. By changing the lights to red or blue the scenes within the spaces changed as well, further highlighting the usage of differing perspectives to see the potential in spaces.
What was once a Prayer Hall can now be the venue for a concert, a bingo hall, a projection movie theatre, or a crafts market. What was at one point the chapel can now become a clothing bank or a resource library to learn about queer history either in broad strokes or in specific, emphasizing groupings like the Muxe, indigenous to Mexico and worth study. The Cloister becoming a Choir Space or an arena for ballroom and vogue performances, not relegated underground but further brought to the surface. Even residential spaces like the Nun’s Quarters could be co-opted into sanctuary and recovery space for Queer youth and others seeking a refuge from the rejection of the outside world, where they can receive further individualize gender affirming care and establish a support network past their immediate blood relatives.
The outdoors could also serve as crafting and fitness zones, spaces where artisans and musicians can hone their skills and network with others to create homegrown movements. The Sanctuary of Perpetual Indulgence should truly be a living and breathing extension of the Sisterhood’s Mission, to Indulge in life’s pursuits, to affirm and love those who come seeking guidance and a space to express themselves. Those who who want to try their hand at drag or wish to dabble in gender expression in general should, rather than being condemned (as some churches do), be welcomed with open arms and reinforced by services in place to help others thrive. De-stigmatizing the Church with Drag Nuns and having a building that extends and expands the message of fluidity tenfold, the Temple should be potential incarnate with the love and compassion that churches are meant to have.
The model is meant to be more funhouse-esque, with numerous openings that allow voyeuristic views into the spaces, but it is also meant to be symbolic in its opening and closing and even the forms upon which each room is based. The main hall, which is set to house the handout booklets, opens as a big toy chest, because each pop-up book is meant to invoke a more childish story time aspect. The side chapel turned library zone has been transformed into a jewelry drawer, complete with adornments intentionally made by indigenous creators and also carrying with them certain over the top drag aesthetics. The Cloister turned choir and ballroom zone is home to the Microphone from which the emcee can tell the “Good Word” of the Sanctuary to all within earshot it also harkens to ballroom and vogueing culture as what someone would use to announce categories at the ball. The medical bay actually swings on a hinge to become a medicine cabinet which would house contraceptives and hygiene products in equal measure along with hormones and pills necessary for gender affirming care. A final feature was the half disco ball dome which doubled as a tithing bowl in traditional church fashion, which was passed out for tips as a part of the Drag schtick or “Tipping Queens”.
The exteriority and interiority of the church model was equally intentionally designed. There was a simplicity to the approach that allowed expression to flourish despite the feat. The existing facade of the Church of San Agustin is already incredibly ornate, so much so that replication on the MDF Board would have taken far too long. Instead, I opted to keep the openings when CNC cutting and adorning them with rhinestones, essentially creating emphasis on the fenestration as though they were eyes themselves while on the inside I chose to utilize mirror tiles in an arabesque styling that brought glimmers of light and mirror ball aesthetics to the interior. I also used silver both as a repeated ribbon pattern skirting the outside of the building and silver marbling on the floors to project regal material. There were material decisions like the shifting Sequined wall that went from silver to rainbow color depending on its direction which I imagine could be a programmed wall display with interactive tactile elements that could shift to match the mood of the event. A last touch was the organza carpet down the center that just added a liquid light catching quality that made the hall seem grander and reacted well to the skirting LED Light strips that would serve as analogues to the lighting system that the church would deploy for atmospheric performances.

